Appartement vide
Conflans Ste Honorine (78700)
1212,50€ + 87,50€ charges
3 pièces 62,5 m² (80 m² utiles)
9 mn à pied puis 23-28 mn ligne J pour Paris St Lazare
Appartement lumineux au Dernier étage
d’une résidence récente (1998) et calme
Séjour, 2 chambres, cuisine indépendante,
salle de bains, WC séparés
box fermé de 12,7 m² possible
DPE D - DPC B
Caractéristiques
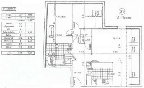
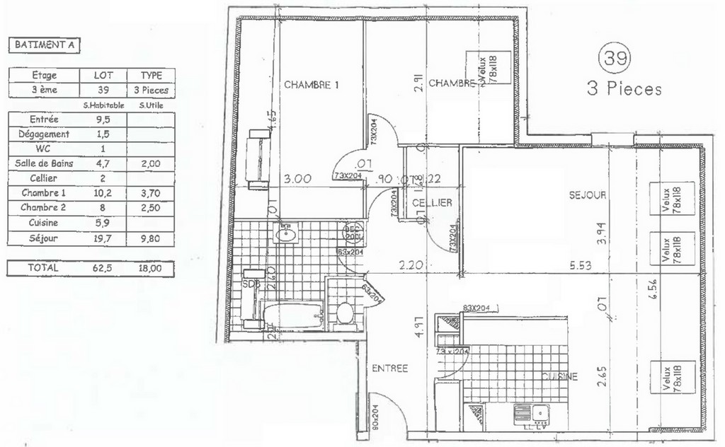
- Nous avons le plaisir de vous présenter un appartement 3 pièces d'une superficie de 62,5 m² loi Carrez (80 m² au sol) situé au dernier étage d'une copropriété de standing, idéalement positionnée en plein centre-ville !
- Ce bien se compose de :
- Une entrée accueillante avec placard, cellier et dégagement (13 m² au total)
- Un spacieux séjour lumineux (19.70/29.50),
- Une cuisine aménagée et équipée (5.90)
- Deux chambres (10.20/13,90 et 8,00/10.50)
- Une salle de bains (4.70/6.70) et des WC séparés (1.00) (Eau chaude, ballon de 200 litres)
- Une place de parking en box fermé (12,7 m²) - supplément 50 €/mois - Vous serez à seulement quelques minutes à pied des transports en commun, des écoles et des commerces, ce qui vous permettra de profiter pleinement de la vie citadine tout en bénéficiant d'un cadre de vie calme et agréable.
- Les charges (provisions de 87,50) sont réparties comme suit : eau 15, autres charge locatives 50, et taxe ordures ménagères 22,50
Localisation / Transports
Gares
Gare de Conflans Sainte Honorine à 300m - Lignes J - infos et horaires
Gare de Conflans Fin d’Oise à 2km - RER A et Lignes J
Equipements
Cuisine
Cuisine équipée : plaques de cuisson avec hotte, très grand frigo, four, place pour lave-linge et pour lave vaisselle
(four, et frigo sont mis à disposition mais ne font pas parti des éléments loués)
Salle de bain / WC (séparé)
Baignoire, lavabo simple vasque
Chauffage / Eau chaude
Chauffage électrique par radiateurs à inertie céramique programmables pour chambres, cuisine et séjour
Convecteur dans la salle de bains - ballon de 200 litres
Commodités / Loisirs
Marchés
Mardi, vendredi et dimanche matin : Marché des quais
(8mn à pied en passant par la rue Maurice Berteau, La rue commerçante du centre-ville)
Mercredi et samedi matin : Le Marché de la Fonderie sur la Place Romagné
(marché couvert 8mn à pied)
Super / Hypermarché
Leclerc et Drive Conflans (5 mn en voiture)
Super U et Drive Herblay-sur-Seine (6 mn en voiture)
et bien sûr tous vos commerçants de proximité
Promenades
Le parc du Prieuré et Musée de la Batellerie en face
Une balade dans la vieille ville, à la découverte de son histoire et de son patrimoine
Logement sur le parcours d'une promenade à vélo
Sans compter les plaisirs des bords de Seine
Théatres
Le Théâtre Simone-Signoret (9 mn à pied), géré par la Ville, propose près de 40 spectacles par an
Péniche Théâtre Story-Boat 9mn à pied)
Cinema
Multiplexe Pathé Conflans (à côté du Leclerc)
Base de Loisir
Ile de Loisirs de Cergy-Pontoise (10 mn en voiture)














